Projects
Information Links Contact frank, rieper. 2011



Studentenheim Graz, Graz, 2003
Wettbewerbsprojekt (Gutachterverfahren) zweitgereiht

Die st�dtebauliche Situation in Umgebung der Eggenberger Allee lassen eine nachtr�gliche Verdichtung und eine St�rkung der Urbanit�t als sinnvoll erscheinen. Gleichzeitig besticht Graz Eggenberg durch kleinteilige Bebauung mit jeweils zugeordneten markanten Gr�nbereichen , die wesentlich f�r den Gesamtcharakter des Bezirks verantwortlich sind. Unterbrochen wird die Bebauungsstruktur von Gewerbe- und Industriebetrieben bzw. Einkaufszentren in unterschiedlichsten Gr��enordnungen.

Freie Bebauung. Dem st�dtebaulichen Masterplan des Architekten Kleboth und der Bebauungsstruktur der Fachhochschule von Architekt Thomas Zinterl entsprechend, entsteht ein Leitmotiv, das auf neu zu schaffende Verbindungsachsen in Ost-Westrichtung verweist, um in Zukunft eine qualitative Aufwertung und interne fu�l�ufige Erschlie�ung des Areals zu gew�hrleisten. Weiters wird dabei auf eine zu schaffende Campussituation der Fachhochschule verwiesen, bei der in der Folge die Bev�lkerung der Umgebung durch entsprechende Mehrfachnutzungen von �ffentlichen und halb�ffentlichen Einrichtungen, eingebunden werden k�nnte. Gleiches verfolgt auch das EU Programm URBAN Graz, das einen nachhaltigen Mix aus Wohnen, Wirtschaft, Kultur, Freizeit und Wissenschaft anstrebt. Daraus resultierend entwickelt sich eine freie Typologie , die auf zuk�nftige st�dtebauliche Ma�nahmen reagiert und gleichzeitig versucht, qualitative Vorgaben f�r eine m�gliche Bebauung der unmittelbaren Umgebung zu setzen.

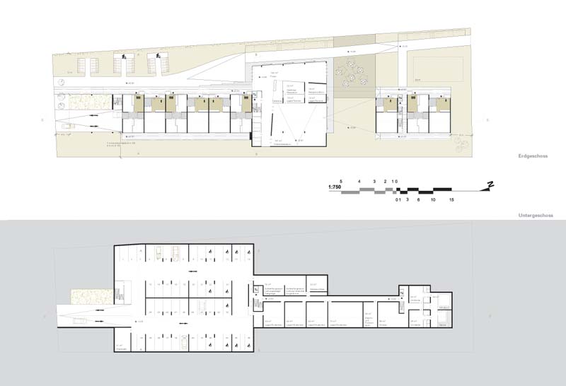
Aus den gegebenen Baugrenz- und Baufluchtlinie bzw. der maximal zul�ssigen Geschossanzahl im Norden und S�den des Grundst�cks und den daraus resultierenden Geb�udeabst�nden zu benachbarten Grundst�cksgrenzen ergibt sich ein Maximalvolumen , das als Ausgangsbasis der Typologieentwicklung herangezogen wird. Durch entsprechendes Entfernen und Hinzuf�gen entsteht ein Volumen, das durch die Verschiebung einzelner Schichten eine optimale Funktionstypologie entstehen l�sst. Vorspr�nge werden als Erschlie�ungsachsen gen�tzt, durch das �ffnen im Zentrum entsteht eine �ffentliche Schnittstelle .

Das Zentrum fungiert als kommunaler Veranstaltungsort mit multifunktionaler Schnittstelle und ist mit seiner Umgebung koppelbar. Au�en und Innen k�nnen als Einheit genutzt werden und im 1. OG, im �bergangsbereich zum Wohnbereich, ist eine halb�ffentliche Terrasse situiert. Der Norden. 5- bis 6-geschossig, durchgesteckte Wohneinheiten, durch Laubeng�nge erschlossen mit gemeinschaftlichen Freir�umen - Innenraum und Au�enraum werden zur gemeinsam nutzbaren Einheit, Gr�nraum im Osten und im Westen als gemeinschaftlicher Freiraum, PKW Stellpl�tze im UG, Zufahrt zu Stellpl�tzen �ber Rampe im Norden. Der S�den. 4-geschossig, durchgesteckte Wohneinheiten mit Laubengang und gemeinschaftlichem Freiraum, im EG Gr�nraum im Osten und Westen als gemeinschaftlicher Freiraum, auf Dachgeschoss gemeinschaftlicher Freiraum, im UG Sauna, Whirlpool, Fitness, Waschr�ume, Lager, Haustechnik.

Eine Bebauungsstruktur, die ihre st�dtebauliche und funktionale Schnittstelle in jener Achse situiert hat, die den Fachhochschulcampus in Ost-Westrichtung mit dem Planungsgebiet erschlie�en soll, bildet die Ausgangsbasis eines zu schaffenden Zentrums. Davon ausgehend erstrecken sich ein 4- bis 6-geschossige Bauk�rper nach S�den und Norden, die mit einem bzw. zwei Treppent�rmen erschlossen werden. Im EG ist im Osten die fu�l�ufige Erschlie�ung der Gesamtanlage situiert, die auch als befestigter Fahrweg f�r Fahrr�der bzw. PKWs dient. Die ebenerdigen behindertengerechten Wohneinheiten werden direkt �ber einen Windfang erschlossen und bieten an der Westseite die M�glichkeit zur individuellen Nutzung des Freiraumes . Die Terrasse des Zentrums ist �ffentlich zug�nglich.

Der Freiraum. Die notwendig dichte Bebauung wird mit dem stark ausgepr�gten Gr�nraum von Graz Eggenberg in Einklang gebracht. Das Gr�n zieht sich vom Erdgeschoss �ber die Nord- und S�dfassaden bzw. die Stiegenh�user �ber die entstehende Bebauung. In Kombination mit den begr�nten Dachfl�chen entsteht ein vegetabiles Ensemble. Der Tiefgarageneinfahrt vorgelagert stehen dicht angeordnete Birken. S�mtliche befahr- und begehbaren Erschlie�ungsfl�chen werden als Kieswege ausgebildet und mit niederen buschartigen Bepflanzungen umgeben, dazwischen befinden sich Fahrradstellpl�tze in Form versperrbarer Fahrradboxen. Im Bereich des Zentrums bildet sich ein befestigter Platz, der als Schnittstelle dient.

Wettbewerb: 2003 - Gutachterverfahren - zweitgereiht
Auslober: �WGES
Projektleitung: Siegfried Frank, Michael Rieper
Mitarbeiter: Paul Vabitsch, Christine Schmauszer, Patrick Klammer, J�rg Sp�ttl
Visualisierung: Jakob Winkler
Umfang:
7 Wohneinheiten je 57 m�
33 Wohneinheiten je 62 m�
16 Wohneinheiten je 112 m�
sowie Gemeinschaftseinrichtungen

www.urban-link.at
www.graz.at

<< zur�ck

















   frank, rieper. 2011  Wien / Graz / Vintl  Partner von MVD Networks