Projects
Information Links Contact frank, rieper. 2011



Palais Thienfeld, Graz, 2003
Caf�, Bar, Lounge, Presseinformation, Graz 2003 - Kulturhauptstadt Europas
Mariahilfer Stra�e 2, 8020 Graz

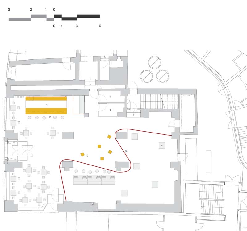
Im Rahmen von Graz 2003 - Kulturhauptstadt Europas werden die im Erdgeschoss gelegenen R�umlichkeiten des Stadtpalais kurzfristig f�r den Tagesbetrieb als Caf� und Pressezentrum adaptiert.

Die Raumkonzeption besteht aus einem Barelement in Max Compactforming in den Farbt�nen Orange und Tabak. Im Kontrast zu orangem Boden und Bar setzen die strahlend wei�en Oberfl�chen der Deckenkuppeln mit der ebenso wei�en M�blierung ein sichtbares Zeichen. Durch die in der Helligkeit anpassbare Beleuchtung k�nnen tageszeitspezifische Situationen geschaffen werden.

Um den Raum f�r unterschiedliche Nutzungen zu strukturieren besteht die M�glichkeit einen gespannten Raumteiler aus bedrucktem Netzgewebe zu positionieren. Die Leuchten wurden von Hans Gamperl zur Verf�gung gestellt.

Bauherr: Graz 2003 - Kulturhauptstadt Europas GmbH
Projektleitung: Siegfried Frank, Michael Rieper
Mitarbeiter: Christine Schmauszer, Georg Skerbisch
Foto: Michael Rieper
Planungs- und Bauzeit: 11/2002 - 01/2003
Fl�che: 230 m�
Nettoherstellungskosten: EUR 30.000,-

www.graz03.at
www.vipers.at

<< zur�ck











   frank, rieper. 2011  Wien / Graz / Vintl  Partner von MVD Networks