Projects
Information Links Contact frank, rieper. 2011



Büro Klammerth, Graz, 2005
Umbau

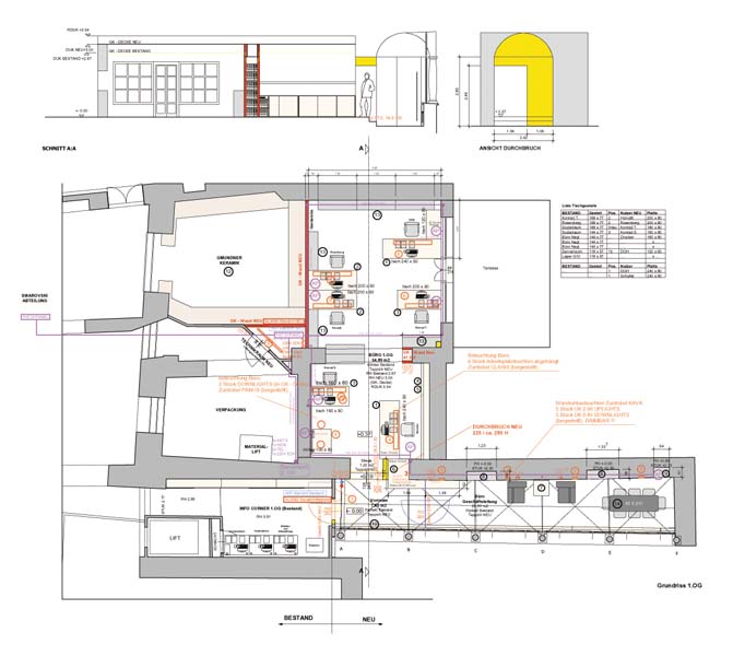
Aus einem Teilbereich der Verkaufsräume und einer Restfläche des Lagers vormals eines Ganges des historischen Innenhofes – sogenannten Generalihofes – entsteht durch eine Durchbrucherweiterung eine neue Raumsituation . Ein kleines feines Großraumbüro mit bester Akustik und Ausstrahlung für die Verwaltung des Unternehmens. Das Büro der Geschäftsleitung befindet sich im historischen Teil mit Kreuzrippengewölbe und erstaunlichen zwei Metern Breite.

Die Reduktion auf die Materialien Teppich weinrot, Möbel aus MDF mit Schleiflack weiß lackiert und satiniertes Glas entsprechen der gewünschten Raumstimmung.

Bauherr: Fa. Klammerth
Projektleitung: Siegfried Frank
Planungs- und Bauzeit: 2005
Fläche: 90 m²

<< zur�ck














   frank, rieper. 2011  Wien / Graz / Vintl  Partner von MVD Networks